Tipografilor, str. Intrarea Lugojului, Etaj Intermediar
- 62.000 EUR
Overview
- OX577
- 2
- Apartament
- 1
- 1
- 50 mp
- 1980
Descriere
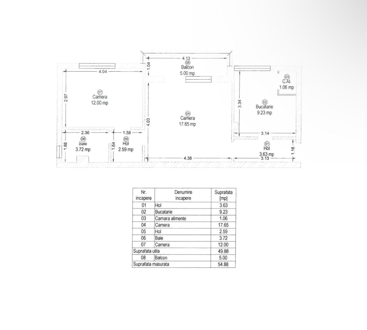
OXIA ofera in exclusivitate spre vanzare un apartament cu doua camere situat in Timisoara, strada Intrarea Lugojului , situat la etajul III, intr-un imobil P+4E+M, semidecomandat, cu suprafata de 55 MP ( 50 MP utili +5 MP balcon ), compartimentat astfel :
Hol acces
Bucatarie cu debara
Living
Balcon cu acces din living
Hol tranzit
Dormitor
Baie cu geam
Proprietatea necesita amenajari complete.
Confortul termic este asigurat prin intermediul retelei de termoficare a orasului ( existand posibilitatea montarii unei centrale proprii ).
Imobilul este reabilitat termic, clasa energetica B.
PRET: 62 000 EURO
Oferim consultanta financiara si juridica pe tot procesul tranzactiei.
Detalii si vizionari : 0725 069 989
Detalii
Updated on mai 30, 2024 at 9:44 am- ID Proprietate OX577
- Pret 62.000 EUR
- Suprafata proprietate 50 mp
- Dormitor 1
- Camere 2
- Baie 1
- An Constructie 1980
- Tip Proprietate Apartament
- Status Proprietate Vanzare
- Tip apartament Apartament
- Confort 1
- Tip Imobil Bloc de apart.
- Etaj Etaj Intermediar
- Compartimentare Semidecomandat
- Nr. balcoane 1
- Suprafata construita 55 mp
- Prezentare Video Nu
- Receptie Da
- Mobilat Mobilat partial
Detalii suplimentare
- Stare interior Necesita renovare
- Regim inaltime 3 / P+4E+M
Facilitati
Adresa
- Oras: Timisoara
- Judet: Timis
- Zona: Telegrafului













