Simplitate, Stil si Unicitate in Urban Village.
- 1.100 EUR/Luna
- 1.100 EUR/Luna
Overview
- OX630
- 273 mp
- 3
- Casa / Vila
- 2
- 2
- 75 mp
- 2024
Video
Descriere
OXIA prezinta o proprietate remarcabila, o expresie a rafinamentului absolut, situata intr-unul dintre cele mai exclusiviste cartiere rezidentiale din Mosnita Noua – Urban Village.
Resedinta unica redefineste standardele luxului prin imbinarea armonioasa a designului contemporan cu functionalitatea desavarsita.
Aceasta este a doua proprietate realizata ca si concept de OXIA LUXURY ESTATE, fiind un nivel urmator primului proiect realizat si implementat in Timisoara – Harmony apartment – apartament care a luat doua premii de design si a fost vandut sub acelasi concept de utilare completa in doar 6 luni.
-> Caracteristici de exceptie:
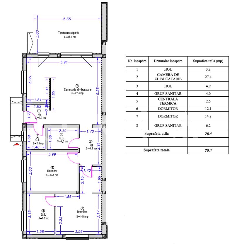
Suprafata utila: 75 mp
Terasa acoperita: 16 mp
Suprafata teren: 273 mp
Arhitectura pe un singur nivel, cu un flux interior optimizat:
Hol elegant
Living generos, perfect integrat cu bucataria open space
Dormitor matrimonial cu baie proprie, spatiu de relaxare intim si sofisticat
Dormitor secundar cu finisaje atent alese
Baie principala, un exemplu de lux discret
Terasa acoperita, ideala pentru momente de relaxare, cu acces direct din living
-> Design interior exclusivist:
Semnatura renumitului designer Jon Vas transforma acest spatiu intr-o opera de arta, cu atentie la fiecare detaliu:
Iluminat ambiental LED inteligent, controlabil prin aplicatie
Parchet Herringbone (ALSAPLAN France), un tribut adus elegantei clasice
Mobilier personalizat realizat la comanda de Inizio, ce imbina estetica moderna cu functionalitatea
Canapea Richmond Interiors Boucle, o piesa centrala sofisticata
Usi Filomuro, produse in Italia, ce completeaza fluiditatea designului interior
Placari decorative realizate manual, ce adauga textura si profunzime
Corpuri de iluminat iconice, semnate de Maytoni, NewWorks si Novaluce
Draperii blackout si jaluzele din lemn de tei, automatizate de tehnologia KOTT
Confort desavarsit si tehnologie de varf:
Bucatarie premium realizata de KUXA, echipata cu electrocasnice de ultima generatie: Bosch, plita Bora Pure cu hota integrata, sertare cu iluminare LED si sisteme de organizare ingenioase
Televizoare Philips, completate de un sistem audio performant cu soundbar si subwoofer
Confort termic asigurat de centrala Bosch si sistemul de incalzire in pardoseala Ferroli, completat de climatizare 12.000 BTU
Toate elementele necesare unui stil de viata premium incluse: aparat de cafea Nespresso, masina de spalat Arctic cu uscator si electrocasnice complete
Spatiu exterior impecabil:
Terasa acoperita, cu structura metalica din aluminiu si tavan extensibil Barisoll, ce adauga un plus de eleganta
Pardoseala Decking WPC, ideala pentru un spatiu exterior rafinat
Iluminat ambiental cu senzori crepuscul pentru o atmosfera de vis
Gazon intretinut cu sistem automat de irigare si foraj propriu cu pompa si presostat
-> Infrastructura de exceptie:
Sistem de securitate avansat cu camere video
Drum de acces betonat, cu latime generoasa de 7 metri
Toate utilitatile esentiale incluse
PRET: 1 100 EURO/Luna + GARANTIE
Descoperiti definitia luxului prin OXIA – acolo unde fiecare proprietate devine o poveste.
Detalii
Updated on noiembrie 13, 2025 at 1:44 pm- ID Proprietate OX630
- Pret 1.100 EUR/Luna
- Suprafata proprietate 75 mp
- Suprafata teren 273 mp
- Dormitoare 2
- Camere 3
- Bai 2
- An Constructie 2024
- Tip Proprietate Casa / Vila
- Status Proprietate Inchiriere
- Tip casa Duplex
- Nr. locuri parcare 2
- Tip constructie Caramida
- Acoperis Terasa
- Nr. terase 1
- Comision 0% la vanzare cerut de la cumparator 1
- Suprafata construita 95 mp
- Prezentare Video Da
- Receptie Da
- Mobilat Mobilat lux
Detalii suplimentare
- Stare interior Ultrafinisat
- Suprafata terasa 16 mp
- Regim inaltime P+1E
Facilitati
Clasa energetica
- Clasa Energetica: A
- Consum total Energie Primara ( kWh / m² / an ): 93.96 kWh
- EPC Current Rating: 16.3
- A+
- 93.96 kWh | Clasa de energie AA
- B
- C
- D
- E
- F
- G
- H
Adresa
- Oras: Mosnita Noua
- Judet: Timis
































