Lidia, Etaj II, Centrala Proprie+AC, Boxa
- 75.000 EUR
Overview
- OX495
- 3
- Apartament
- 2
- 1
- 62 mp
- 1977
Descriere
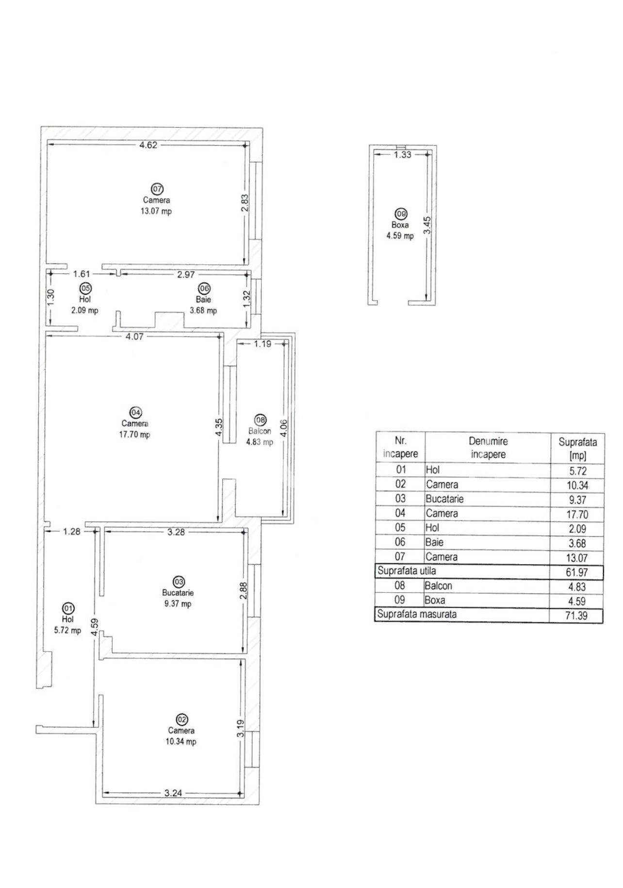
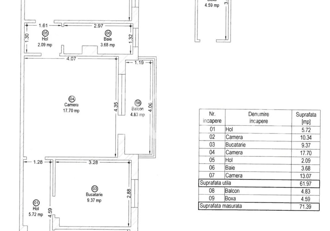
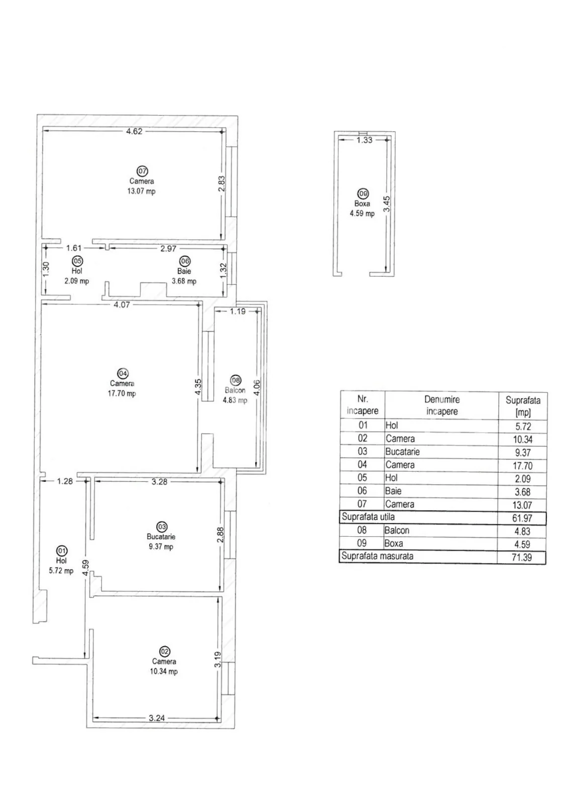
OXIA prezinta in exclusivitate spre vanzare apartament cu 3 camere in Timisoara, strada Lidia, situat in imobil S+P+4E+M, la etajul II, cu suprafata de 61.97 MP utili + 4.83 MP balcon + 4.59 MP boxa, semidecomandat, compartimentat astfel:
Hol acces
Bucatarie
Living
Balcon cu acces din living
Hol tranzit
2 Dormitoare [complet decomandate]
Baie cu geam
Apartamentul beneficiaza de amenajari clasice: usa intrare metalica, usi interioare din lemn, ferestre PVC cu geam termopan [balcon&baie&bucatarie], ferestre din lemn cu geam din sticla, parchet din lemn masiv, vopsea lavabila, etc.
Confortul termic este asigurat prin intermediul centralei proprii pe gaz cu calorifere si prin intermediul sistemului de climatizare .
Dispune de boxa proprie in suprafata de 4.59 MP situata la subsolul tehnic al imobilului [notata in Cartea Funciara].
Clasa energetica: A.
PRET: 75 000 EURO
Pentru mai multe detalii despre aceasta proprietate sau pentru stabilirea unei vizionari, ne puteti contacta la numarul de telefon 0725 069 989.
Detalii
Updated on martie 16, 2023 at 3:49 pm- ID Proprietate OX495
- Pret 75.000 EUR
- Suprafata proprietate 62 mp
- Dormitoare 2
- Camere 3
- Baie 1
- An Constructie 1977
- Tip Proprietate Apartament
- Status Proprietate Vanzare
- Tip apartament Apartament
- Confort 1
- Tip Imobil Bloc de apart.
- Etaj Parter
- Compartimentare Semidecomandat
- Nr. balcoane 1
- Suprafata construita 72 mp
- Prezentare Video Nu
- Receptie Da
- Mobilat Nemobilat
Detalii suplimentare
- Stare interior Finisat clasic
- Regim inaltime 2 / P+4E
Facilitati
Adresa
- Oras: Timisoara
- Judet: Timis
- Zona: Lidia



















