Casa in Giroc – vatra satului, finisata la cheie
- 144.000 EUR
Overview
- OX548
- 130 mp
- 4
- Casa / Vila
- 3
- 2
- 92 mp
- 2022
Video
Descriere
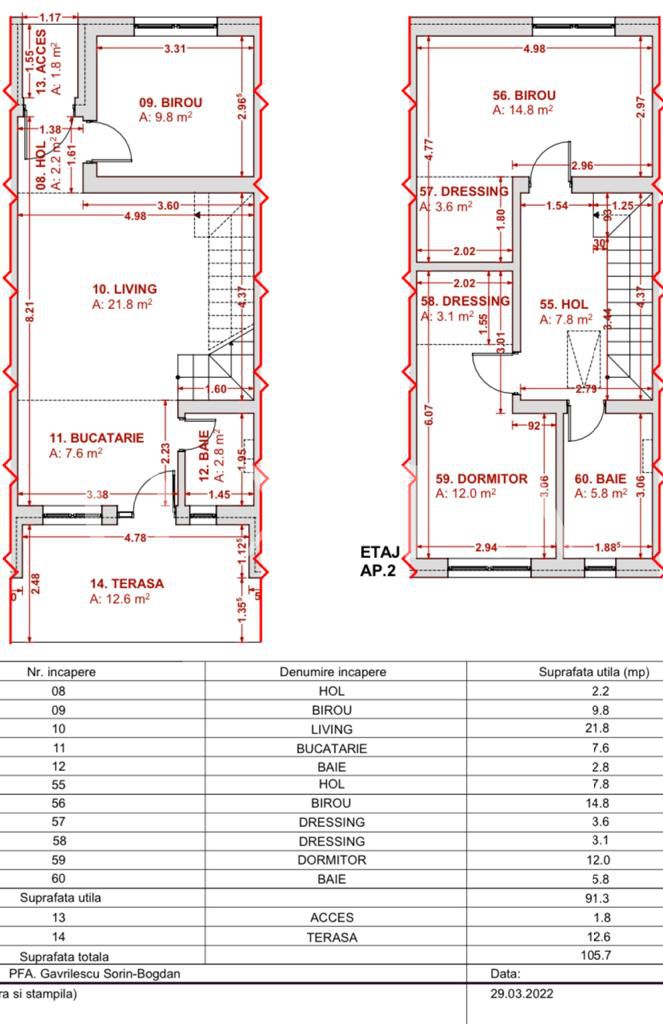
OXIA prezinta spre vanzare casa in Giroc, intr-un ansablu rezidential, cu suprafata terenului de 130 mp, suprafata construita de 130mp(amprenta casei la sol este de aproximativ 70mp), suprafata utila de 92 mp + 13 mp terasa partial acoperita, compartimentata astfel:
Parter: hol acces, living cu bucatarie open space, dormitor/birou, baie, terasa partial acoperita
Etaj: hol foarte lat, 2 dormitoare fiecare cu dresing propriu, baie.
Pod: pe toata suprafata casei ideal pentru depozitare.
Imobilul beneficiaza de finisaje moderne: geamuri termopan cu 3 foi de sticla (tripan), instalatie electrica pe cupru.
Incalzirea se realizeaza prin pardoseala, cu ajutorul centralei termice pe gaz.
Casa este construita din caramida, acoperita cu tigla, izolata cu polistiren.
Zidul dintre case este de caramida de 30cm.
Peretii si tavanele sunt tencuite, nu exista deloc rigips in case.
Casa se vinde “LA CHEIE” , termen de finalizare: Noiembrie 2023.
Dispune de utilitati: apa, curent, gaz, canalizare, iluminat stradal.
Drumul de acces este asfaltat.
2 locuri de parcare in fata casei amenajate cu pavaj
PRET: 144 000 EURO + COMISION AGENTIE
Oferim consultanta juridica si financiara pe tot procesul tranzactiei.
Detalii
Updated on septembrie 9, 2024 at 7:55 pm- ID Proprietate OX548
- Pret 144.000 EUR
- Suprafata proprietate 92 mp
- Suprafata teren 130 mp
- Dormitoare 3
- Camere 4
- Bai 2
- An Constructie 2022
- Tip Proprietate Casa / Vila
- Status Proprietate Vanzare
- Tip casa Casa insiruita
- Nr. locuri parcare 2
- Tip constructie Caramida
- Acoperis Tigla
- Nr. terase 1
- Suprafata construita 120 mp
- Prezentare Video Da
- Receptie Da
- Mobilat Nemobilat
Detalii suplimentare
- Amprenta la sol 70 mp
- Stare interior Finisat modern
- Suprafata terasa 13 mp
- Suprafata curte 35 mp
- Regim inaltime P+1E+Pod
Facilitati
Adresa
- Oras: Giroc
- Judet: Timis
















