Dumbravita IKEA, COMISION 0%
- 168.000 EUR
Overview
- OX567
- 146 mp
- 3
- Casa / Vila
- 2
- 2
- 80 mp
- 2017
Video
Descriere
OXIA prezinta spre vanzare o casa deosebita P+1E situata intr-un ansamblu rezidential (casa insiruita) din Dumbravita, amplasata in zona Cora, langa IKEA.
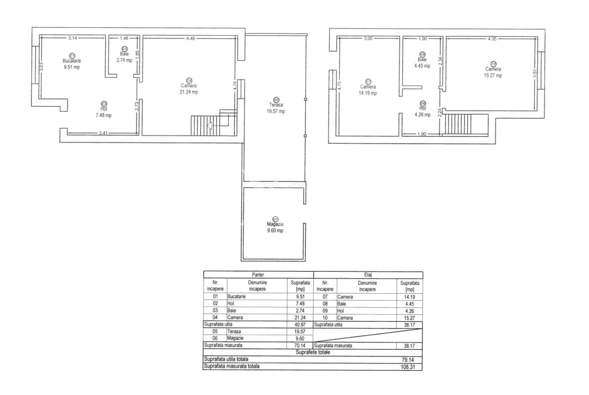
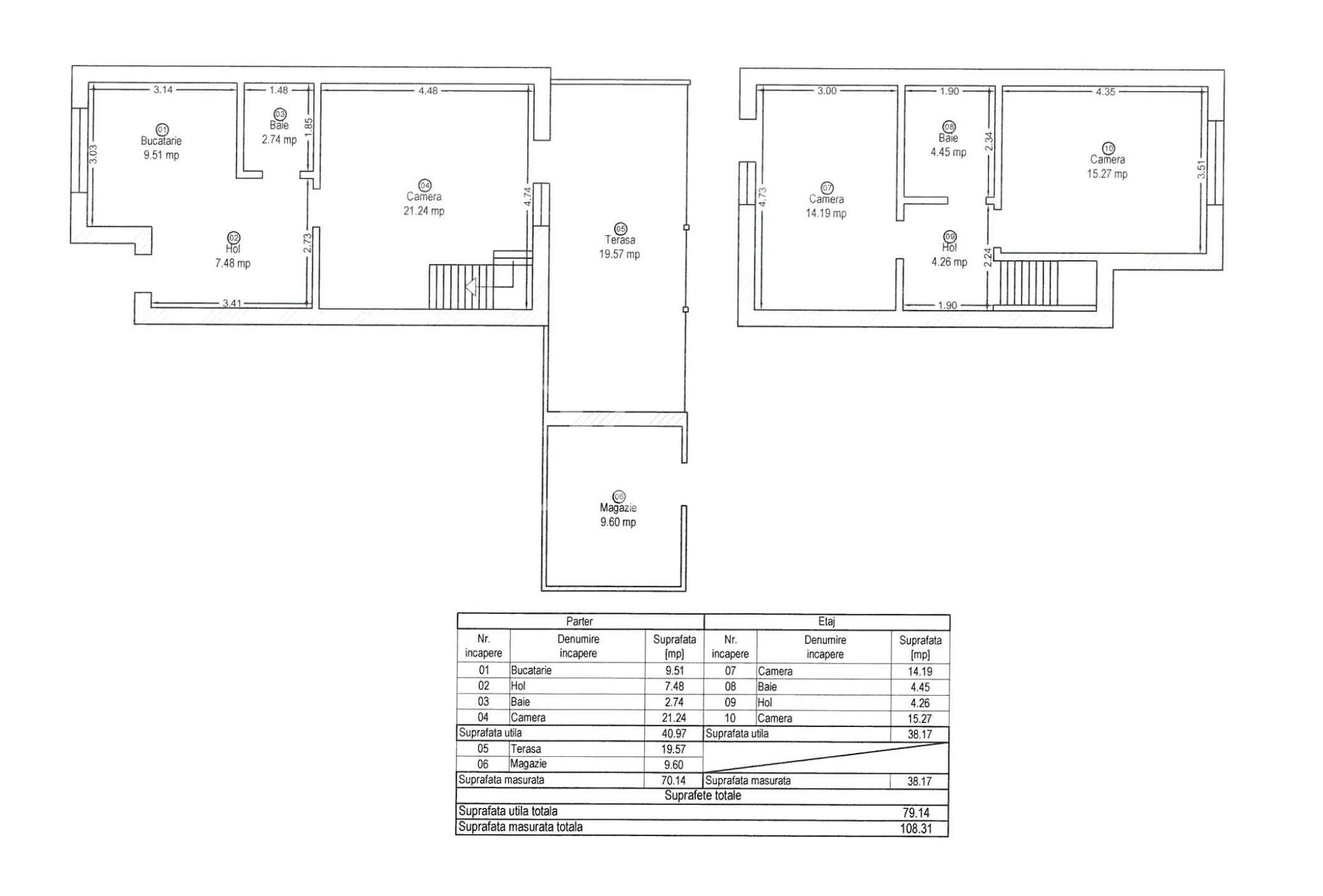
Cosntruita in anul 2017, aceasta proprietate ofera un spatiu total construit de 109 MP pe un teren de 146 MP, proprietatea avand suprafata utila de 80 MP, cu urmatoarea compartimentare:
PARTER: hol, bucatarie, living, baie, terasa acoperita de 20 MP, magazie pentru depozitare de 9 MP.
ETAJ: hol, 2 dormitoare, 1 baie cu cada , acces pod
Constructia solida din caramida porotherm, izolata cu polistiren si acoperisul din tigla confera proprietatii stabilitate si durabilitate.
Finisajele moderne includ ferestre PVC cu geam termopan, usa intrare PVC, usi interioare celulare, placi de gresie/faianta, parchet laminat, vopsea lavabila, etc.
Confortul termic este asigurat de centrala proprie cu incalzire in pardoseala la parter si cu incalzire in calorifere la etaj, completat de un sistem de climatizare eficient.
Beneficiaza de pod pe toata lungimea casei pentru depozitare.
Exteriorul casei este amenajat cu grija, beneficiind de o terasa spatioasa acoperita si cu sistem de inchidere, perfecta pentru a petrece timpul in aer liber, o bucatarie de vara complet echipata, o zona verde cu plante ornamentale si dotari precum un sistem de irigatii , foraj si un spatiu dedicat pentru barbecue.
Accesul in proprietate este facilitat de doua cai de acces.
Proprietatea se vinde partial mobilata si utilata (mobilier bucatarie, hota, plita, cuptor, combina frigorifica, dulap hol, dulap dormitor secundar) impreuna cu doua locuri proprii de parcare notate in cartea funciara a imobilului.
Imobilul este situat pe strada asfaltata, in fata acestuia fiind statie de autobuz si statie de autobuz scolar.
Informatii Suplimentare:
Pretul acestei proprietati este de 168.000 EURO [ COMISION 0% pentru cumparator ].
Codul anuntului este OX567.
Se accepta achizitionarea prin credit bancar.
Echipa noastra va sta la dispozitie cu consultanta financiara si juridica pe tot parcursul tranzactiei.
Pentru mai multe detalii despre aceasta proprietate sau pentru stabilirea unei vizionari, ne puteti contacta la numarul de telefon 0725 069 989.
Detalii
Updated on mai 18, 2024 at 6:10 pm- ID Proprietate OX567
- Pret 168.000 EUR
- Suprafata proprietate 80 mp
- Suprafata teren 146 mp
- Dormitoare 2
- Camere 3
- Bai 2
- An Constructie 2017
- Tip Proprietate Casa / Vila
- Status Proprietate Vanzare
- Tip casa Casa insiruita
- Nr. locuri parcare 2
- Tip constructie Caramida
- Acoperis Tigla
- Nr. terase 1
- Comision 0% la vanzare cerut de la cumparator 1
- Suprafata construita 109 mp
- Prezentare Video Da
- Receptie Da
- Mobilat Mobilat partial
Detalii suplimentare
- Stare interior Finisat modern
- Suprafata terasa 20 mp
- Regim inaltime P+1E
Facilitati
Adresa
- Oras: Dumbravita
- Judet: Timis
























