Birou, Zona Aradului, Comision 0
- 700 EUR/Luna
Overview
- OX391
- 4
- Spatiu de birouri
- 1
- 110 mp
- 2000
Descriere
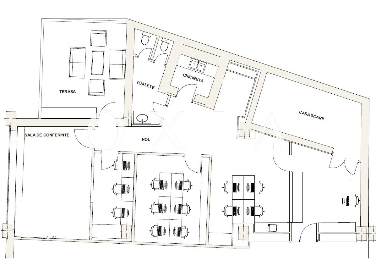
OXIA prezinta spre inchiriere spatiu pretabil pentru birouri in Timisoara, zona Aradului, situat la etajul 2 din 3 (imobil cu lift), cu suprafata de 110 MP utili + 25 MP terasa proprie, compartimentat astfel:
– Hol
– Receptie
– 4 Birouri
– 1 Grup sanitar
– Chicineta
– 1 Camera tehnica
– Terasa de 25 MP
Spatiul beneficiaza de amenajari moderne: ferestre PVC cu geam termopan, usa din sticla, parchet laminat, placi de gresie/faianta, vopsea lavabila, tapet, etc.
Confortul termic este asigurat prin intermediul centralei proprii pe gaz cu calorifere si a sistemului de ventilatie.
Se inchiriaza nemobilat.
Cladirea dispune de locuri de parcare, supraveghere video, lift, servicii de curatenie si mentenanta.
PRET: 700 EURO/Luna ( NEGOCIABIL )
COMISION 0%
Detalii
Updated on mai 30, 2022 at 1:24 pm- ID Proprietate OX391
- Pret 700 EUR/Luna
- Suprafata proprietate 110 mp
- Camere 4
- Baie 1
- An Constructie 2000
- Tip Proprietate Spatiu de birouri
- Status Proprietate Inchiriere
- Tip Imobil Cladire birouri
- Etaj Parter
- Pret .
- Nr. terase 1
- S. Totala Birouri 110 mp
- Suprafata construita 135 mp
- Prezentare Video Nu
- Receptie Da
- Mobilat Mobilat complet
Detalii suplimentare
- Regim inaltime 2 / P+3E
Facilitati
Adresa
- Oras: Timisoara
- Judet: Timis
- Zona: Aradului


















